25 Westheights Drive Didsbury, Alberta T0M 0W0

6 Bedroom 2 Bathroom 1,661 ft2
Bungalow Fireplace None Baseboard Heaters Fruit Trees, Landscaped, Lawn

$539,900

Welcome to your dream family home, perfectly located on an oversized lot with plenty of parking, including a large concrete RV parking area. The private back yard has a playhouse for the kids tucked in one corner and backs onto a large park with playground. Spacious yet cozy, this 6 bedroom home with over 3200 sq. ft. of developed living space offers the perfect blend of comfort, functionality, and charm. Entering the beautiful front courtyard is the start of your journey to discovering all the great features this home offers, like the large open entrance area, the classic wood-burning fireplace with log lighter and solar tube in the sunken living room, hardwood and Artica tile flooring, carpeting that was replaced just three years ago, solid pine doors in the kitchen cabinetry and throughout most of the house, a large kitchen island, a gas stove along with a second oven, three generous-sized bedrooms, and a family bath that boasts a jetted tub as well as a separate shower. The large lower level family room is home to the second fireplace, this one gas. Two of the three basement bedrooms offer double pocket doors and built-in desks. A large laundry room has plenty of room for a second fridge and freezer and a shiny new efficient boiler in the utility room is sure to impress. Dining room garden doors offer access to the large rear deck with pergola that overlooks the rear yard and park behind. Located in the welcoming community of Didsbury, this home combines small-town charm with convenient access to local amenities, schools, and parks and the Didsbury golf course just across the street. It’s an ideal setting for those looking to settle down in a friendly and serene neighborhood. Don’t miss out! Schedule your viewing today and envision the life you’ll create in this great family home. (id:62795)

Property Details

MLS® Number A2276344
Property Type Single Family
Amenities Near By Golf Course, Park, Playground, Recreation Nearby, Schools
Community Features Golf Course Development
Features Wood Windows, No Animal Home, No Smoking Home, Level
Parking Space Total 8
Plan 7910415
Structure Shed, See Remarks, Deck

Building

Bathroom Total 2
Bedrooms Above Ground 3
Bedrooms Below Ground 3
Bedrooms Total 6
Appliances See Remarks
Architectural Style Bungalow
Basement Development Finished
Basement Type Full (finished)
Constructed Date 1981
Construction Material Wood Frame
Construction Style Attachment Detached
Cooling Type None
Exterior Finish Brick
Fire Protection Smoke Detectors
Fireplace Present Yes
Fireplace Total 2
Flooring Type Carpeted, Cork, Hardwood, Linoleum, Other, Tile
Foundation Type Wood
Heating Fuel Natural Gas
Heating Type Baseboard Heaters
Stories Total 1
Size Interior 1,661 Ft2
Total Finished Area 1661 Sqft
Type House

Parking

Concrete
Attached Garage 2
Parking Pad
R V

Land

Acreage No
Fence Type Fence
Land Amenities Golf Course, Park, Playground, Recreation Nearby, Schools
Landscape Features Fruit Trees, Landscaped, Lawn
Size Depth 33.53 M
Size Frontage 19.81 M
Size Irregular 7150.00
Size Total 7150 Sqft|4,051 - 7,250 Sqft
Size Total Text 7150 Sqft|4,051 - 7,250 Sqft
Zoning Description R-1

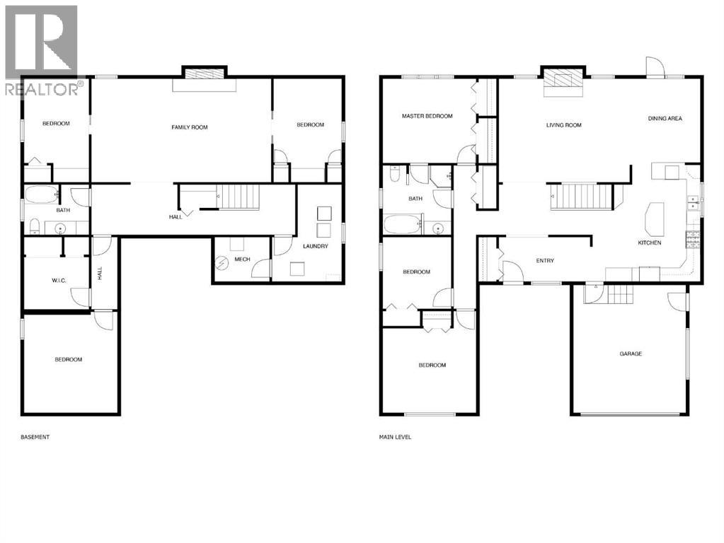
Rooms

Level Type Dimensions
Basement Family Room 26.08 Ft x 14.75 Ft
Basement Bedroom 14.83 Ft x 8.75 Ft
Basement Bedroom 14.75 Ft x 9.42 Ft
Basement Bedroom 13.83 Ft x 12.75 Ft
Basement 4pc Bathroom 8.50 Ft x 7.00 Ft
Basement Laundry Room 13.33 Ft x 7.08 Ft
Basement Storage 10.33 Ft x 8.83 Ft
Basement Storage 5.83 Ft x 2.83 Ft
Basement Furnace 7.17 Ft x 6.17 Ft
Main Level Living Room 18.42 Ft x 14.75 Ft
Main Level Dining Room 12.00 Ft x 10.58 Ft
Main Level Kitchen 16.67 Ft x 12.75 Ft
Main Level Primary Bedroom 13.42 Ft x 12.25 Ft
Main Level Bedroom 10.67 Ft x 9.33 Ft
Main Level Bedroom 13.00 Ft x 12.00 Ft
Main Level 4pc Bathroom 9.33 Ft x 9.25 Ft
Main Level Other 11.08 Ft x 6.00 Ft

https://www.realtor.ca/real-estate/29213890/25-westheights-drive-didsbury

Contact Us

Contact us for more information

Generating Captcha

Dan Peters
Broker of Record

(403) 802-2020
(403) 948-7902
www.petersrealestate.ca/

RE/MAX Rocky View Real Estate
303-191 Edwards Way Sw
Airdrie, Alberta T4B 3E2

(403) 948-5900
(403) 948-7902

David Le Couilliard
Associate

(403) 615-6543
(403) 948-7902

RE/MAX Rocky View Real Estate
303-191 Edwards Way Sw
Airdrie, Alberta T4B 3E2

(403) 948-5900
(403) 948-7902

Your Favourites

 

No Favourites Found